產品概述
??TDG(BMP)-C型雙托輥電子皮帶秤是采用德國申克技術生產制造,適用于惡劣的工業環境場合。在需要準確測量連續運動的散料的流量,以求提高經濟效益的地方,都可以使用。雙托輥電子皮帶秤,電子皮帶秤廣泛應用于建材、冶金、化工、煤炭、電廠、礦山等行業。

??
主要特點
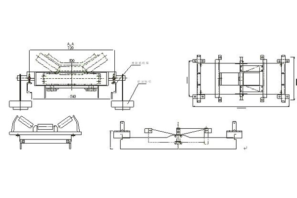
- 安裝簡單。雙托輥電子皮帶秤通過四個支撐螺釘固定在皮帶輸送機框架上。不必改動皮帶輸送機的框架,而安裝調整、移動方便。
- 秤體為一體化機架,長度僅為1米。
- 雙托輥電子皮帶秤適用于長期可靠運行;運行中免維護,不磨損,精度高,使用可靠。
- 無鉸鏈的不銹鋼板簧平行支撐。
- 皮帶上的料載荷直接加到稱傳感器上(無杠桿比)。
- 流量范圍:5t/h~1500t/h。
- 秤量方式:雙托輥結構。
- 秤量精度:0.5%。
??適配皮帶機部分型號:TD75
??其它標準和非標準帶式輸送機需要提供有關尺寸.
??
尺寸安裝圖






